Nemovitosti

BYT 3+kk(79m²)s b­alkonem v historickém centru Františkových Lázní na prodej

3.550.000 ,-
Celkem 17 fotografií, zobrazit všechny
Prodejce:
realitní makléř: Iveta Billová
Iveta Billová
telefon: +420602961353
info@rebellion.cz

BYT 3+kk(79m²)s b­alkonem v historickém centru Františkových Lázní na prodej

3.550.000 ,-
Popis nemovitosti:

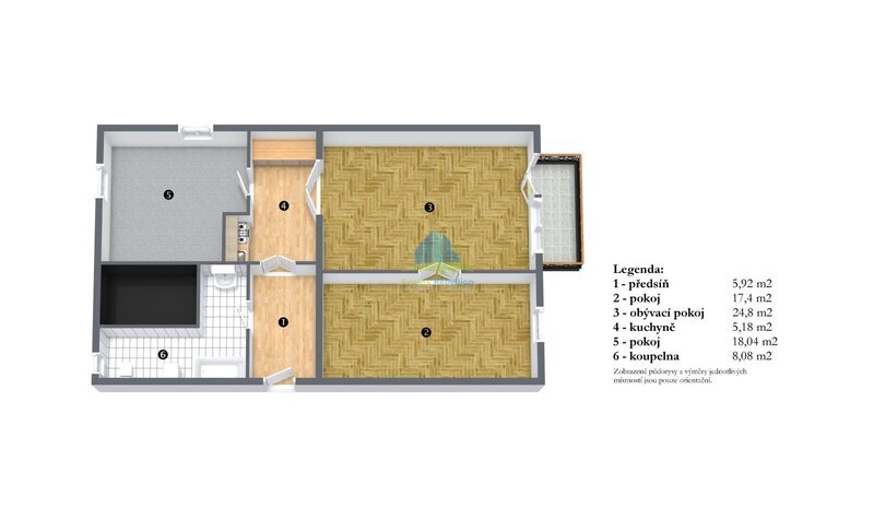
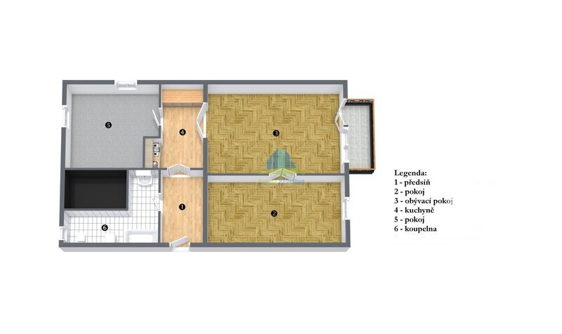
Realitní kancelář Rebellion nabízí bytovou jednotku v historickém centru Františkových Lázní s balkonem. Jedná se o byt 3+KK ve zděné zástavbě v I.NP bez výtahu.
Výměra bytu vč. balkonu+sklepa cca 94,53m². Byt je v původním stavu. Nutná rekonstrukce. V koupelně se nachází vana, WC, umyvadlo a el. bojler na teplou vodu.
Okna původní dřevěná, neudržovaná. Podlahy plovoucí, lino, beton, v některých místnostech jsou položené parkety, v koupelně dlažba.
Vnitřní dveře včetně obložek původní dřevěné -neudržované. Topení plynové – vafky (momentálně nefunkční) nebo elektrické přímotopy.
V zadním pokoji jsou kachlová kamna na dřevo-nepoužívaná. Stropy vysoké cca 3,8m.
Z pokoje je vstup na prostorný balkon – nutná rekonstrukce a zpevnění. V domě je zavedená elektřina, plyn, voda a veřejná kanalizace. Součástí bytu je komora a sklep. Půdní prostor není k dispozici. Fond oprav cca 800,–Kč/měsíc.
Dům leží v klidné lokalitě v centru Františkových Lázní. Okolní zástavbu tvoří zděné domy. V dosahu je veškerá občanská vybavenost obce.
Zděný bytový dům byl postaven na začátku 20 století.
PENB G

Typ nemovitosti:
Byt
Číslo nemovitosti:
2026-04-14-1
Typ bytu:
3+kk
Operace:
Prodej
Vlastnictví:
Osobní
Adresa:
Františkovy Lázně
Boženy Němcové 31/15
Podlaží:
1. podlaží
Stav objektu:
Před rekonstrukcí
Konstrukce:
Cihlová
Umístění objektu:
Centrum obce
Komunikace:
Dlážděná, asfaltová
Vydaný certifikát:
G - Mimořádně nehospodárná
Typ certifikátu:
vyhláška č. 264/2020 Sb
Je zobrazena tato GPS souřadnice:
50° 07' 6.997"N, 12° 21' 9.178"E

Finanční kalkulačka

Líbí se Vám tato nemovitost, ale nemáte v současné době dostatek finančních prostředků? Rádi Vám poskytneme možnost financování.


Částka:

Úrok:
%

Doba splácení:
let

Měs. splátka: